Добро пожаловать на http://vipplan.ru

Випплан Лесной - это тысячи проектов домов в нашем каталоге!

Вы всегда сможете найти для себя проект дома вашей мечты! Даже если этого не случилось, мы готовы в любую минуту предложить проект индивидуального дома.

Забыли пароль?
Вы еще не регистрировались?

Перейдите по ссылке ниже на страницу регистрации.

Регистрация...

Внимание!!!

В проектную документацию могут быть внесены изменения любой сложности, в соответствии в Вашими пожеланиями!

Полезные статьи

Типы и разновидности кровли

Кровля состоит из сплошного настила, стяжки и обрешетки, поддерживающих стропила и несколько слоев изоляции, призванных уберечь кровельное пространство от негативного воздействия пара и влаги....

Советы по проектированию дома

Представляем Вашему вниманию несколько советов по проектированию дома. Все что касается выбора участка, размещению дома на участке, подбора проекта на строительство дома, советы по выбору технологии строительства и материалов и т.д....

Проекты домов и коттеджей > Каталог проектов домов > Дом с мансардой, гаражом, террасой и балконами Vg1136

Дом с мансардой, гаражом, террасой и балконами Vg1136

Дом с мансардой, гаражом, террасой и балконами
Зарегистрируйтесь

Проект № Vg1136


Техническое описание
Общая площадь: 184.55 м2
Жилая площадь: 80.29 м2
Высота здания: 8.88 м
Размеры дома: 17.79м×10.44м
Кол-во комнат: 4
Цокольный этаж: нет
Гараж: нет
Мансарда: есть

Kонструкция
Фундамент: Монолитная плита
Перекрытия: Деревянные
Материал стен: Газобетон

Архитектурный раздел
Конструктивный раздел
АР+КР - 60 000 (Со скидкой 20%)
Проект индивидуального однотажного жилого дома с мансардой с размерами здания 17,79 x 10,44 м. Наружная отделка здания – штукатурка/дерево/камень. Фундамент – монолитная плита (под всей площадью дома). Наружные стены – из газобетонных блоков , с утеплителем - экструдированный пенополистирол , с отделкой фасадной штукатуркой , клинкерной плиткой и деревянными панелями. Внутренние стены - из газобетонных блоков Перегородки – на первом этаже из газобетона, на мансарде - ГКЛ на металлическом каркасе. Пол первого этажа - пол по монолитной плите. Межэтажное перекрытие - деревянные балки с пароизоляцией и использованием теплошумоизоляционных материалов типа "Rockwool Лайт Баттс" в межбалочном пространстве. Крыша гибкая черепица. Кровля – двускатая. Окна - металлопластиковые, выполненные по индивидуальному заказу.
Генплан застройки участка / Паспорт проекта 7000 руб / 10000 руб
Инженерный раздел (полный) 92500 руб
Смета на строительство 46250 руб
Теплотехнический расчет материалов стен Бесплатно
Стоимость проекта со незначительнми изменениями 70350 руб
Стоимость проекта со средними изменениями* 84300 руб
Стоимость проекта со значительными изменениями** 88000 руб

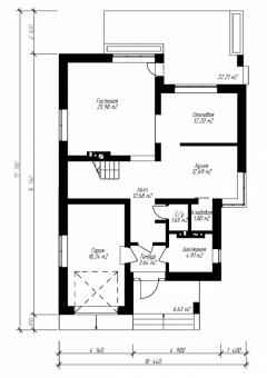
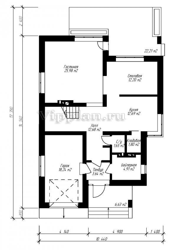
План первого этажа


Крыльцо — 6,63 кв м
Тамбур — 3,64 кв м
Бойлерная — 4,91 кв м
Кладовая — 1,80 кв м
С/у — 1,65 кв м
Гараж — 18,24 кв м
Холл — 12,68 кв м
Кухня — 12,69 кв м
Столовая — 12,20 кв м
Гостиная — 25,98 кв м
Терраса — 22,21 кв м

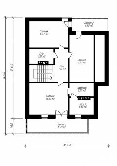
План мансардного этажа


Балкон 1 — 13,30 кв м
Спальня — 19,60 кв м
С/у 1 — 5,52 кв м
Гардероб — 5,27 кв м
Спальня — 18,29 кв м
Холл — 7,71 кв м
С/у — 5,52 кв м
Спальня — 16,42 кв м
Балкон 2 — 6,95 кв м
Дом с мансардой, гаражом, террасой и балконами Дом с мансардой, гаражом, террасой и балконами Дом с мансардой, гаражом, террасой и балконами Дом с мансардой, гаражом, террасой и балконами

Модификации проектов

Внесение изменений и привязка к участку строительства

В любой из проектов от компании VIPplan - Лесной по вашему желанию могут быть внесены изменения в материалы стен, материалы наружной отделки дома, а также будет произведена адаптация проекта под конкретный регион строительства (с учетом грунтов региона, геологических особенностей вашего участка и местных климатических условий) - БЕСПЛАТНО !!! (кроме проектов со скидкой и проектов наших партнеров).

Любой из проектов, размещенных на сайте lesnoy.vipplan.ru мы можем выполнить из требуемых вам строительных материалов: ячеистый бетон (газобетон, пеноблок), керамоблок, кирпич, шлакоблок, бетонный блок, дерево (брус, клееный брус), каркасная технология (деревянный каркас, металлокаркас (ЛСТК)).

Фасад дома и его наружную отделку так же возможно выполнить с применением различных облицовочных материалов: структурной штукатурки, (с утеплителем и без), сайдингом (пластиковый или металлосайдинг), фиброплитами, кирпича.

 
6 Избранные
проекты

Доставка проектов по России: Москва (Московская область), Санкт-Петербург (Ленинградская область), Краснодар, Ростов-на-Дону, Ставрополь, Сочи, Волгоград, Новосибирск, Белгород, Брянск, Воронеж, Саратов, Хабаровск, Астрахань, Нальчик, Владикавказ, Екатеринбург, Тюмень, Самара, Нижний Новгород, Казань, Пермь, Уфа, Челябинск, Красноярск, Ханты-Мансийск, Иркутск, Курган, Оренбург, Омск, Томск, Барнаул, Новокузнецк, Кемерово, Абакан, Чита, Якутск, Южно-Сахалинск, Петропавловск-Камчатский и страны ближнего зарубежья: Белоруссия, Украина, Казахстан